20 minutes walk from Wimbledon Tennis. Peaceful home with lovely garden. | Apartment in London

2 Bedroom Apartment in Earlsfield, London
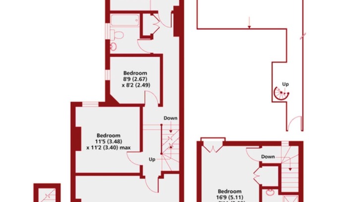
This is a spacious 2-bed, 2-bath Earlsfield maisonette for Wimbledon. A short bus or train ride to the courts. Or a 20 minute stroll through Wimbledon Park. It features a private garden, over 1000 sq ft of living space, and two bathrooms. A comfortable retreat after a day at the tournament. It is a short walk from a plethora of pubs and restaurants and the train station.
Earlsfield was recently voted one of the top three places to live in London by The Sunday Times. It is the hidden gem of South West London, nestled between the bustling hubs of Wimbledon and Clapham. There are boutique shops, a butchers and deli, a fishmongers, supermarkets, cafes, pubs and restaurants (including Thai, Korean, Vegan, Japanese, Italian and Indian). We are ideally located for visiting central London and Wimbledon Tennis.
20 minutes walk from Wimbledon Tennis Peaceful home with lovely garden is located in Earlsfield. 20 minutes walk from Wimbledon Tennis Peaceful home with lovely garden provides accommodation, featuring Bedding/Linens, Wellness Facilities, Fireplace/Heating, among other amenities. This Apartment features Bedding/Linens, Wellness Facilities, Fireplace/Heating, to make your stay a comfortable one.
20 minutes walk from Wimbledon Tennis Peaceful home with lovely garden has 2 Bedrooms , 2 Bathrooms, and max occupancy of 4 people. The minimum rental for this property is 1 nights, but this can change depending on the season you plan on staying. Previous guests have rated it 2, and VRBO labeled it a top-rated Apartment because of the excellent services rendered by the owner or manager of this Apartment, and has consistently provided great experiences for their guests. Most families or guests that use it recommend it to their friends and some of them are repeat guests. Apartment has a friendly neighborhood, and the Earlsfield has interesting places to visit. If you want to learn more about the Apartment in Earlsfield, such as places to visit and things to do nearby, you can check below to learn more.
Amenities
Facility Overview
-
Heating
-
Toilet paper
-
Towels provided
-
Hair dryer
-
Soap
-
Bathtub or shower
-
Bed sheets provided
-
Oven
-
Dishwasher
-
Microwave
-
Stovetop
-
Washing machine
-
Laundry facilities
-
No pets allowed
-
Smoke-free property
-
TV
-
Iron/ironing board
-
Internet access
-
Barbecue grill
-
Smoke detector installed (host has indicated there is a smoke detector on the property)
-
Carbon monoxide detector installed (host has indicated there is a carbon monoxide detector on the property)
Policies
FAQ's
Is this Earlsfield apartment pet-friendly for guests?
No, pets are not allowed at this property. Check the guest reviews to learn what guests had to share.
Does the Earlsfield apartment have a swimming pool?
No, this Earlsfield apartment does not have a swimming pool. Check the Facility Overview section for details about the pool and other available facilities.
How much does it cost per night to stay in Earlsfield apartment?
Best-rates for the Earlsfield apartment starts from $502 per night with includes TV, Security/Safety, Child Friendly, Internet, Laundry, Bedding/Linens, Wellness Facilities, Fireplace/Heating, Barbecue/Outdoor Cooking, Kitchen with all other facilities. Hotala matches every traveler with their perfect hotel, resort, or rental and whether you are traveling with a group, friends, family, or pets.
Is Earlsfield apartment a family-friendly place to stay?
Based on the information we have received from the owner or our partner, this is considered to be a family-friendly property. Families have rated this apartment 2 stars or guests have recommended them suitable for families. As reported by the owner or manager, the apartment has specified that children are welcome. Please see details about suitability for your family or inquire with the property to learn more.
Is the Earlsfield apartment wheelchair accessible or offer services for disabled guests?
Based on the information received from our partner, the Earlsfield apartment has not specified they are wheelchair accessible. Likewise, there is not an elevator specified as being available at the property. Specific accessibility details may be addressed in the property details section of this page.
What is the minimum night stay policy for the Earlsfield apartment?
Based on the information reported by the owner or manager, the Earlsfield apartment indicates 1 day stay policy at this apartment. Guests are cautioned that the minimum stay policy may differ based on seasonality or availability and may be at the discretion of the owner or manager.
What cancellation policy is in place for Earlsfield apartment?
Based on the information reported by the owner or manager, details for the cancellation policy for the Earlsfield apartment are as follows: Cancellation policy Guests are cautioned that the cancellation policy may differ based on seasonality, availability, or current travel restrictions. Guests should also be aware that this policy may be subject to change and should be confirmed prior to booking. More details may be available on this page in the property description. However, early check-in or late check-out can sometimes be negotiated between the guest and the owner or the manager of this property.